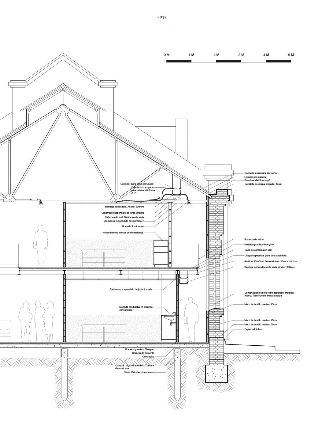
Medical Center As part of SV arquitectura I participated in the project of the new Medical Center Rosario, which is now in construction. Related Author: Lena No tengo idea de qué estamos hablando. View all posts by Lena